Téléchargements D’EarthBin

Caracteristiques, dessins d’architecture, modèles 3D et histoires sur nos conteneurs de déchets et de recyclage enterrés.

Guides Produits

Guide de L’utilisateur
Guide Produit

Caracteristiques

EarthBin®
EarthBin® Haut De Gamme
l’EarthBinOrganics & l’EarthBinEvent

Réussites

L’expérience de Vaudreuil-Dorion
Ontario Home Builder
Accora Village
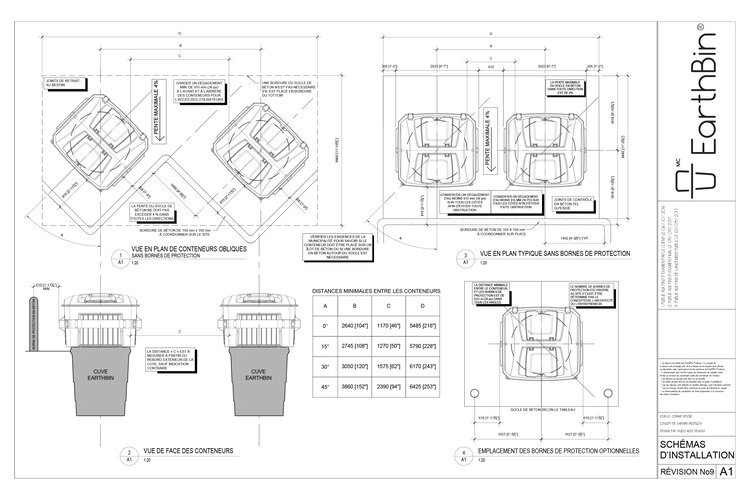
Les modèles et dessins CAO des produits EarthBin sont disponibles en téléchargement dans différents formats pour les architectes, les ingénieurs et les concepteurs.

Dessins d’Architecture

AutoCad, Revit, and SketchUp

Earthbin-2018.rfa
Earthbin-2020.rfa
EarthBin .dxf
EarthBin .Dwg
Earthbin - Simple.skp
Earthbin.skp

Starting at $499 - 2x EarthBins

2x EarthBin waste systems starting at $499/month, including 2 EarthBins and installation. Programs available for municipalities, commercial properties, universities & college campuses, multi-residential communities, restaurants and more.